Fluorescent Optical Fiber Temperature Measurement Solution for Power Contact in Energy Industry

Fluorescent Optical Fiber Temperature Measurement Solution for Power Contact in Energy Industry

1. Systematic Introduction

In modern society, the electric power industry is the foundation of national economic development and is closely related to people’s lives. Electric power accident is a major disaster in the national economy. It not only affects the economic benefits of enterprises themselves, but also causes huge losses to the national property and the life safety of workers. Substations in the power industry are power facilities for transforming voltage, receiving and distributing energy, controlling power flow and adjusting voltage in the power system. They connect the power grids of all levels of voltage through their transformers, switchgears and power cables. In addition, Substation equipment also has measuring and controlling transformers, meter, relay protection device, and lightning protection devices, etc. The reliability of these devices is very important. For a long time, the safety monitoring of power grid equipment in our country has not been effectively carried out, resulting in frequent accidents, equipment damage, endangering personal safety, and directly affecting the development of people’s lives and economic construction.

Due to various reasons, the connection parts of electrical equipment such as isolation switch, switchgear dynamic and static contacts, cable head and so on, when the current passes, the temperature rises, which causes equipment aging and insulation decline. Seriously, it will cause short circuit, damage equipment and interrupt power supply. At present, the main method of monitoring the thermal condition of the connection is that the on-duty personnel regularly use infrared thermal imager, thermometer or temperature display patch to monitor the equipment offline. This method can only measure the contact temperature exposed outside, but there is no effective monitoring method for the contact temperature in the closed metal switchgear cabinet. In the operation of transformer, over-temperature of winding will lead to insulation aging, burnout, breakdown and other accidents. Other physical and chemical changes in transformer interior (such as partial discharge and partial overheating) can also cause the temperature change of transformer, which makes the performance of transformer different from that of normal operation. According to the "6°rule ", the relationship between transformer aging rate and temperature is based on the reference temperature. The aging rate of transformer increases by one time for every 6℃ rise in temperature, that is to say, the life of transformer decreases by half. Therefore, the winding temperature of transformer plays a decisive role in the aging of insulation material and the life of transformer. At present, there is no effective monitoring method for transformer winding temperature rise.

At present, the maintenance and correction of power equipment in power system is transiting from fault maintenance, preventive maintenance to condition-based maintenance. Therefore, the introduction of optical fiber sensing technology and the use of optical fiber sensing temperature monitor are important means to ensure the safe operation of high-voltage switchgear.

image.png

2. Technical Advantages

The comparison of several main temperature measurement methods in the field of electric power at present:

2.1 Infrared Thermal Imaging Temperature Measurement System

Advantages:

1. Non-contact temperature measurement, and easy to operate;

2. Low cost.

Disadvantages:

1. The measurement is inaccurate, only the surface temperature can be measured, the real temperature of the internal hot spot cannot be measured;

2. Handheld, and cannot achieve online monitoring;

3. Artificial inspection, increase labor costs, the minimum annual labor costs of more than 100,000 Yuan.

2.2 Wireless Temperature Measurement System

Advantages:

1. Easy installation;

2. Low cost.

Disadvantages:

1. Poor reliability, with battery measurement, short life;

2. The insulation performance of cabinet is affected, so it cannot pass the test;

3. The large volume of the sensor affects the heat dissipation function;

4. The surface temperature can only be measured, but the real temperature inside the hot spot cannot be measured.

2.3 Fiber Bragg Grating Temperature Measurement System

Advantages:

1. Quasi-distributed temperature measurement can be realized, which is suitable for long-distance and large-area areas;

2. With optical fiber technology, the insulation performance is good.

Disadvantages:

1. Difficult to install;

2. Cannot achieve a single cabinet matching, cannot achieve in-situ display.

2.4 Fluorescent Optical Fiber Temperature Measurement System

Advantages:

1. Its performance is safe and reliable, and it can achieve calibration-free, good consistency, interchangeability and stability;

2. Long service life, maintenance-free. Minimum use of optical fiber sensors for 25 years;

3. The probe is small in size and can be used to measure the hot spot in depth, so as to realize the real and effective monitoring of the hot spot;

4. Anti-electromagnetic interference, good insulation performance, integrated into intelligent switchgear and passed the type test;

5. It can be displayed locally and integrated into the control system conveniently.

6. Easy installation and flexible networking;

7. High cost performance ratio.

Disadvantages:

1. The measuring distance is relatively short, usually in the order of 100 meters.

For the node temperature measurement of electrical equipment in power plants and substations, Herch’s fluorescent optical fiber temperature measurement has obvious advantages: no electrical interference, small size, long life, independent networking, and high reliability.

 

3. System Characteristics

Ø Guarantee the ideal isolation of primary and secondary power, good linearity and high accuracy;

Ø Multichannel transmission: The information collected by the system can be uploaded and dispatched by FTU, GPRS or communication management unit in the box, and the transmission mode can be flexibly selected according to the field environment;

Ø Do not reduce the safety level of electrical equipment: Temperature-measuring fluorescent optical fiber fire detector is small, 2.8mm in diameter, without any metal materials, electronic components, good insulation, 20cm withstands 100,000 volts voltage;

Ø Full-year, all-weather security guardian: At least 25 years, 365 days a year, 24 hours a day real-time monitoring and analysis;

Ø It reduces the blind area of monitoring and improves the safety of equipment: Positioning accuracy is 1 mm;

Ø Cost savings: Directly installed in the temperature rise part, real-time recording and displaying monitoring point data to achieve unattended monitoring station objectives;

Ø Maintenance basis is established: Fully grasp the operation of the equipment, can predict the aging of the equipment, so as to put forward the maintenance time and maintenance plan according to the operation status of the equipment;

Ø Intelligent judgment: It can quickly judge and analyze the normal temperature, abnormal temperature and fire of the tested object.

 

4. Major Performance Indicators


image.png

image.png

5. Introduction of Main Components

The HQ series fluorescent optical fiber temperature monitoring system is selected as the on-line monitoring system for electric power connection in rail transit industry. A set of system is mainly composed of several optical fiber temperature sensors, a multi-channel optical fiber demodulator, monitoring host computer and human-machine exchange software.

5.1 HQ Series Fluorescent Fiber Temperature Demodulator

HQ series fluorescent optical fiber temperature demodulator receives real-time optical signal with temperature information from temperature-measuring fluorescent optical fiber fire detector, and demodulates it to temperature value to realize temperature measurement of monitored parts. When the actual measurement value is larger than the alarm setting value, the alarm signal sent out. They can work independently on a single computer, or can be used in multiple networking, and are suitable for application requirements of various scales.

5.2 Temperature-Measuring Fluorescent Optical Fiber Fire Detector

The probe size of temperature-measuring fluorescent fiber-optic fire detector is very small and can be directly installed at the measured point, which can measure temperature accurately and respond quickly. Its tail fiber is made of soft and strong special optical fiber, which has the advantages of high transmission bandwidth, stable signal, anti-electromagnetic interference, anti-flexure, high impact strength and fast connection.

The tail fiber sheath has the characteristics of high temperature resistance, aging resistance, corrosion resistance, high insulation, non-adherence and so on. It can adapt to the harsh environment of high voltage, high temperature, strong electromagnetic and so on.

5.3 Monitor Host

The monitoring host can receive and process the normal information, fault information and disaster information from the optical fiber temperature demodulator in real time, and quickly process and manage them. The monitoring host has the functions of fault monitoring, display, alarm and information exchange. At the same time, the remote monitoring can be realized through the network.

5.4 Men-Machine Interface

The main functions of the software system include real-time temperature local monitoring, real-time data remote monitoring, high/low temperature alarm, high/low temperature early warning, historical data playback, pre-alarm and post-alarm curve, temperature export to Excel and other functions.

 

6. Construction cases

Ø Installation of monitoring host: The monitoring host of this system is installed in the monitoring cabinet of the substation control room, and a monitoring computer is set up in the central control station for remote monitoring.

Ø Installation of HQ Series Optical Fiber Temperature Demodulator: The demodulator is installed on the back wall of the instrument panel in front of the switchgear to facilitate future maintenance.


image.png

Box Substation Installation


image.png

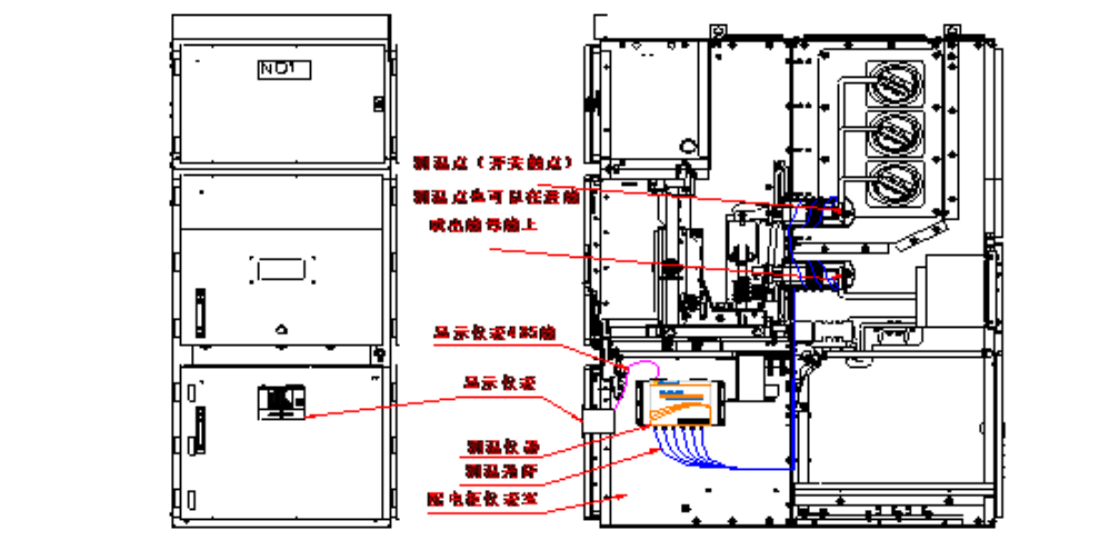
Schematic Diagram of the Layout of the Switchgear in the HQ Series Fluorescent Optical Fiber Temperature Monitoring System

Ø Installation of HQ-12 Temperature-measuring Fluorescent Optical Fiber Sensor


1. Installation on Switchgear Contacts

image.png

The main hotspot of switchgear is located at the joint of static and dynamic contacts, but this part is protected by insulating sleeve, and the space inside is very narrow. In order to measure the heating temperature of contacts more accurately, the diameter of HQ-12 temperature-measuring fluorescent optical fiber sensor is 2.8mm. It can extend into the inner of the sleeve from the rear of the sleeve along the confluence row. A high temperature resistant and high insulation installation clamp is designed specifically for the static contacts, which can fix the sensor firmly on the static contacts. 

When fixing the fluorescent optical fiber fire detector with a clamp, the sensor head is fixed in the fixed groove of the sensor first, and then the clamp and the sensor head are clamped on the cylinder of the static contact. During installation, the clamp is installed at the joint of the static contact and the bus bar to keep a safe distance from the movable contact.

2. Installation at Cable Joint of Switchgear

image.png

The fluorescent optical fiber fire detector for temperature measurement was pasted on the cable joint with special aviation silica gel and fixed with special strapping.

After the installation of the temperature-measuring fluorescent optical fiber fire detector is completed, the tail fibers are tied to the copper bars connected with the rear of the static contacts with insulating straps to prevent the temperature-measuring fluorescent optical fiber probe from hitting the adjacent contacts in case of falling off.

Ø Inside Cabinet Wiring

In order not to affect the electrical distribution in the cabinet, as well as the future overhaul of the cabinet, cables and tail fibers in the cabinet should be as far as possible along the corner of the cabinet, or take a special trunk or bundle with the secondary cable in the cabinet.

image.png

Ø HQ series transformer winding temperature measurement system, the optical fiber sensor probe is installed in winding coil in the process of transformer fabrication. Through flange penetrator, the internal and external optical signals are docked, and the temperature measurement host is analyzed and demodulated to realize real-time on-line temperature measurement.

Ø Background communication: Real-time temperature data of field power equipment are uploaded to the backstage monitoring system through 485 parallel lines or optical cable transmission.

Ø About insulation and anti-creeping: Temperature-measuring fluorescent optical fiber fire detector has high insulation, anti-creeping, anti-corrosion.

Attachment: Product Model